(CLICK IMAGE TO ENLARGE)
 

Park Street, Mayfair


Park Street
Property Price: Asking £22,000,000

 

A Stunning and architecturally appealing freehold townhouse of 6,949 square feet situated at the favoured northern end of Park Street whereby only a small number of houses back on to the hidden Green Street gardens. Brick fronted with intricate stucco detailing, the house spans 3 windows across allowing an abundance of natural light throughout. Generously proportioned and designed by revered Dutch designer Marcel Wanders, the house offers well-balanced accommodation throughout including a large study and separate family room at ground floor level, the latter of which offers direct access to the Green Street Gardens. Formal reception rooms are found on the first floor with an elegant drawing room overlooking the gardens and a substantial dining room at the front of the house, sufficiently large enough to comfortably seat 15 guests. The Master bedroom Suite occupies the entire second floor of the house with a beautifully appointed dressing room and luxurious "spa' bathroom clad in opulent marble and underfloor heating throughout. The third floor is the childrens' floor and has been creatively designed with fun in mind. Whilst it has been uniquely appointed with specialist joinery, it could easily be refitted to create two more conventional bedroom suites as desired. Two large guest suites can be found at the top (fourth floor) of the house, providing easy access to the roof terrace which offers far reaching views over both the gardens and the roof tops of Mayfair. At lower ground floor level there is an efficient family kitchen with industrial grade extraction and Miele appliances. With ancillary storage and utility rooms, the house also allows for two staff bedroom suites and a "dumb waiter' to serve
the drawing and dining rooms on the first floor. An ornate, Portland Stone and wrought iron staircase, as well as a good size passenger lift services all floors.

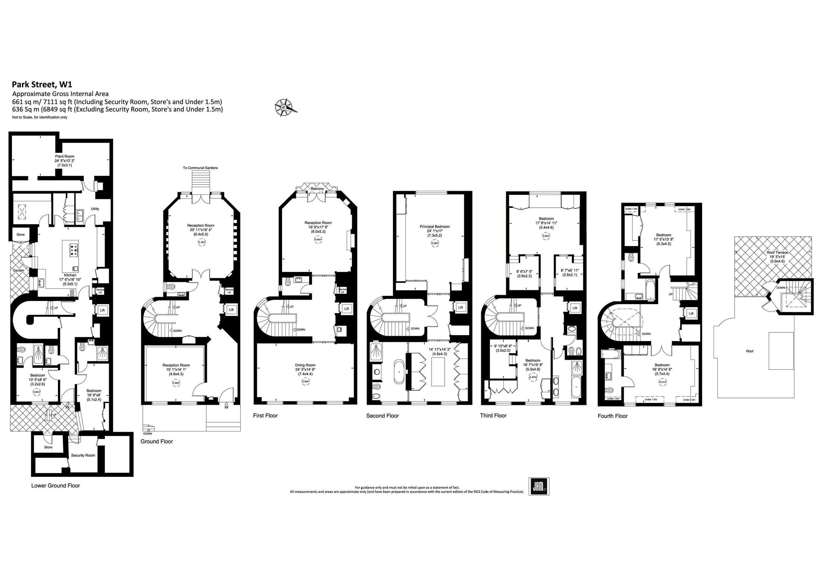
Floorplans

(click to enlarge floorplans)

Key Features

Lift Access
garden
Mayfair Village
Air Conditioning

Property Data

5 Bedrooms
5 Bathrooms
2 Reception
Outside space
Tenure: Freehold

Contact Us

Call Us on: +44 (0)20 7409 5086
Or fill out our convenient contact form below...
First Name
Last Name
Telephone or Mobile
Email Address
Message
 
Cookies help us deliver our services. By continuing to browse this website, you agree to our use of cookies.    close